Villa singola in vendita

Padenghe Sul Garda, Via Sant'Anna
€ 790.000
7 locali 7 locali
210 Mq 210 Mq
3 bagni 3 bagni

Villa singola in vendita

Padenghe Sul Garda, Via Sant'Anna

Descrizione annuncio

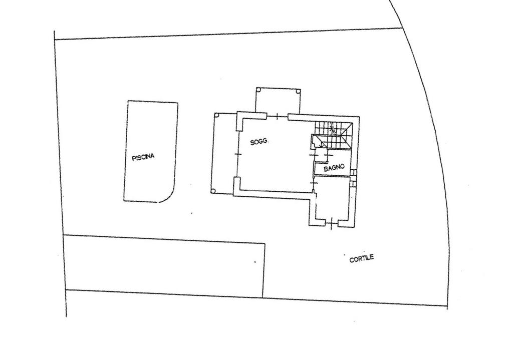
In splendida posizione collinare, proponiamo elegante e luminosa villa singola immersa nel verde.

L’abitazione si sviluppa su tre livelli e dispone di un curato giardino privato con piscina, ideale per momenti di relax e convivialità.

Al piano terra troviamo un luminoso soggiorno con affaccio sul portico e vista piscina, un cucinotto e un servizio finestrato.
Al primo piano si sviluppa la zona notte con due camere da letto, entrambe con balcone, e un secondo servizio.
Il piano interrato ospita una spaziosa taverna, lavanderia, un ulteriore locale pluriuso e un garage triplo con comodo accesso.

La proprietà combina comfort moderni e tranquillità, offrendo un contesto esclusivo a pochi minuti dai principali servizi.

EN.

In a splendid hillside location, we offer an elegant and bright detached villa surrounded by greenery.
The residence is arranged over three levels and features a beautifully maintained private garden with a swimming pool—perfect for moments of relaxation and entertaining.

On the ground floor, there is a bright living room opening onto a porch with pool view, a kitchenette, and a bathroom with window.
The first floor hosts the sleeping area with two bedrooms, both with balconies, and a second bathroom.
The basement level includes a spacious tavern, a laundry room, an additional multipurpose room, and a triple garage with convenient access.

This property perfectly combines modern comfort and tranquility, offering an exclusive setting just a few minutes from all main amenities.

Mostra tutto

Nelle vicinanze

Trasporto pubblico Trasporto pubblico
Trasporto pubblico
1,4 Km
Padenghe
1,7 Km
Ricariche auto elettriche Ricariche auto elettriche
Splendido Bay Luxury Spa Resort
1,6 Km
Sede GardaUno
2,0 Km
Farmacia Farmacia
Beretta
2,0 Km
Negozi Negozi
New Market
2,0 Km
Panedolci
2,0 Km
Bar Bar
Coco Beach
2,2 Km
Ristoranti Ristoranti
Francisco
1,4 Km
Aquariva
1,5 Km
Il Rivale - L'Osteria di Palazzo
1,7 Km
Pratello
1,7 Km
Ketty
1,9 Km
Mostra tutto

Caratteristiche

Rif.:
61125989
Piano:
3 di 3 (Piano su più livelli)
Box:
3
Terrazzi:
4
Camere da letto:
3
Arredamento:
Completo
Mostra tutto
Prezzo Prezzo
€ 790.000
Rata mutuo Rata mutuo
€ 3.729 / mese
Spese annue Spese annue
€ 0
Proponi il tuo prezzoProponi il tuo prezzo
Immobile valutato con T·Valuta

Classe Energetica

B
B
B
B
B
B
B
B
B
EP invernale del fabbricato:
EP estiva del fabbricato:
Anno di costruzione:
2012
Riscaldamento:
Autonomo
Tipo impianto:
A pavimento
Tipo alimentazione:
Metano

Ti interessa visionare l'immobile?

Fissa un appuntamento  Fissa un appuntamento

Richiedi informazioni

Clicca su Leggi per aprire l'informativa
* Questi campi sono obbligatori

Calcola il tuo mutuo

Semplice e senza impegno
Anticipo

( % )
Mutuo

( % )

pochi semplici passi

inserisci i tuoi dati
Questionario completato
Grazie per aver richiesto un appuntamento senza impegno con un nostro Consulente del Credito e Assicurativo.

Hai inserito correttamente tutti i dati necessari e a breve riceverai una e-mail con un link da convalidare per inviare i tuoi dati.
Affiliato
Valtenesi Service Srl
Via Guglielmo Marconi, 81 25080 Padenghe Sul Garda (BS)

Il nostro staff


  • Luca Ruspaggiari
    Affiliato

  • Anna Bresciani
    Collaboratrice

  • Leonardo Ghio
    Collaboratore

  • Sara Tosoni
    Coordinatrice
Via Guglielmo Marconi, 81 25080 Padenghe Sul Garda (BS)
Zona: Lago di Garda-Padenghe-Soiano-Calvagese
Mostra su mappa
Orari: lunedì/venerdì 09.00-13.00 e 15.00-19.00; sabato chiusura alle 18.00; domenica su appuntamento.
Affiliato
Valtenesi Service Srl
Via Guglielmo Marconi, 81 25080 Padenghe Sul Garda (BS)

2025 Tecnocasa Franchising S.p.A. - P. IVA 08365160152 - Via Monte Bianco 60/A 20089 Rozzano (MI). Ogni agenzia ha un proprio titolare ed è autonoma. Privacy policy | Policy utilizzo | Cookie policy